Instalované příkony - pohon regenerace
- těsnicí zařízení (turniket)
- šnekový dopravník ((odsun) z filtru) |
0,25 kW
1,1 kW
0,75 kW
|
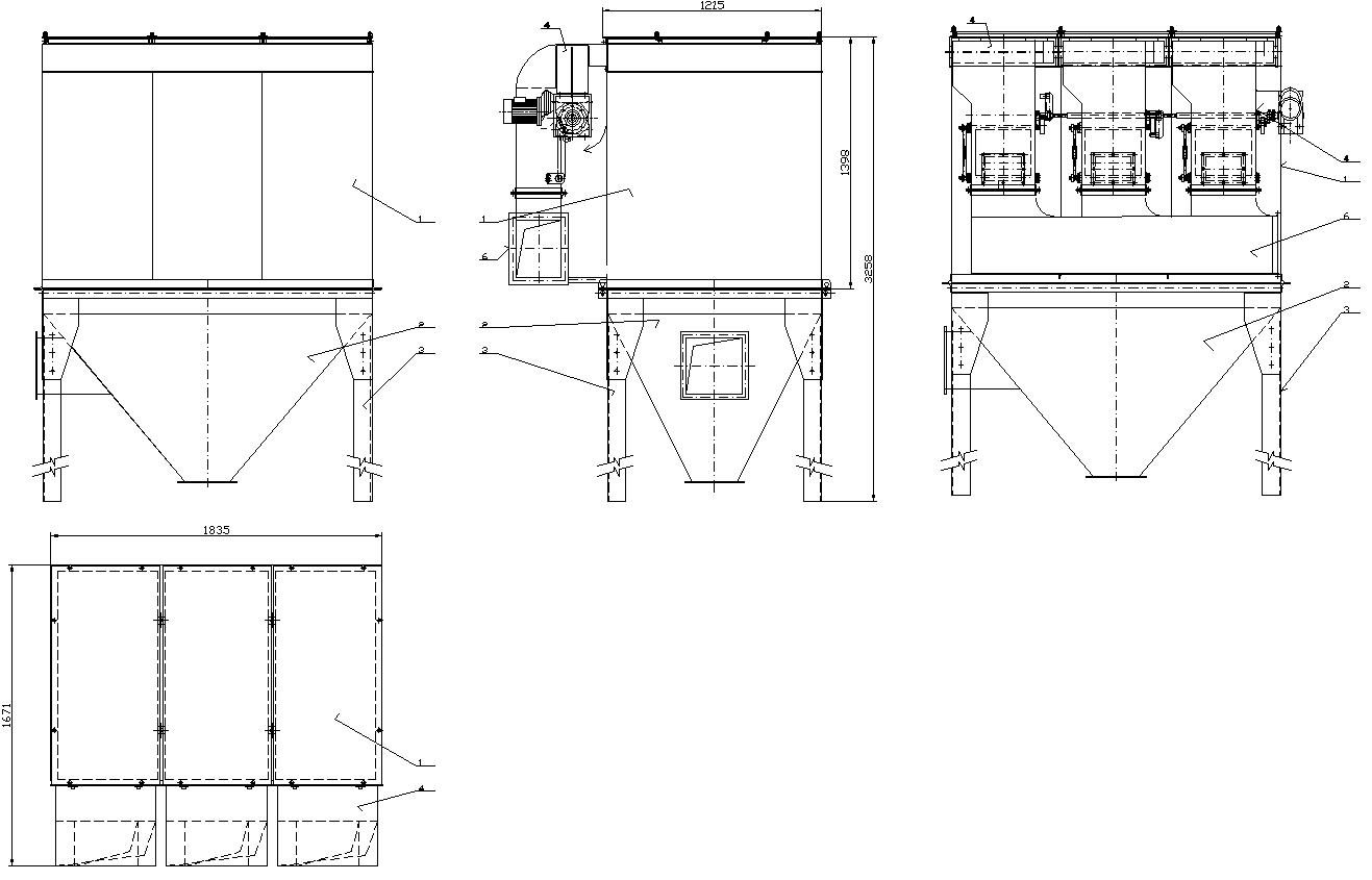
| Hlavní rozměry šířka x hloubka x výška |
3147x3034x3520 mm |
| Hmotnost |
1600,- kg |
| Filtrační plocha |
75 m2 |
| Maximální vlhkost prachu |
8% |
| Podtlakový systém filtru tvoří vysokotlaký ventilátor RVI 630 |
15kW |